1-Bedroom ground floor apartment, Tersefanou, Larnaca

EUR €95,000
Beds: 1
Baths: 1
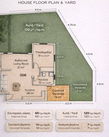
Internal: 65 sq.m
Plot: 206 sq.m

Overview

Tersefanou – Investment Opportunity in Complex with Pool
Ground floor 1-bedroom apartment for sale in very good condition, located in a well-maintained residential complex with a communal swimming pool.
🏡 Property Features: • 65 sqm internal area
* 14 sqm covered veranda + 7 sqm uncovered
* 120 sqm private yard
* Total usable space ~206 sqm
* 1 bedroom / 1 bathroom
* Covered parking
* A/C provision
* Title deed available
* Renovated
📌 There are other units available in the same complex through the auction, however not all offer the same conversion potential, making this property a unique opportunity.
📍 Location: • 6 minutes to highway & 12 minutes to airport & sea
* Bus stop 20m away
💰 Estimated Value: €95,000
Total of 29 properties for sale:
* Studios from €45,000
* 1-bedroom units
* 2-bedroom & penthouses starting €120,000
📅 Open Viewings: 20–23 April
⚠️ Important: In the auction process, the final bid price is the final purchase price – no negotiation after.
👉Τερσεφάνου – Επενδυτική Ευκαιρία σε Συγκρότημα με Πισίνα
Πωλείται ισόγειο διαμέρισμα 1 υπνοδωματίου σε πολύ καλή κατάσταση, σε οργανωμένο συγκρότημα με κοινόχρηστη πισίνα.
🏡 Χαρακτηριστικά: • 65 τ.μ. εσωτερικός χώρος
* 14 τ.μ. καλυμμένη βεράντα + 7 τ.μ. ακάλυπτη
* 120 τ.μ. ιδιωτική αυλή
* Σύνολο ~206 τ.μ. χώρος χρήσης
* 1 υπνοδωμάτιο / 1 μπάνιο
* Καλυμμένο parking
* Πρόνοια A/C
* Τίτλος ιδιοκτησίας διαθέσιμος
* Ανακαινισμένο
📌 Στο ίδιο συγκρότημα υπάρχουν και άλλα διαθέσιμα ακίνητα στη δημοπρασία, όμως δεν έχουν όλα την ίδια δυνατότητα μετατροπής.
📍 Τοποθεσία: • 6 λεπτά από αυτοκινητόδρομο & 12 λεπτά από αεροδρόμιο & θάλασσα
* Στάση λεωφορείου στα 20μ
💰 Εκτιμώμενη αξία: €95.000
Συνολικά 29 ακίνητα προς δημοπρασια.
Σημαντικό: Κατά τη διαδικασία της δημοπρασίας, η τελική τιμή προσφοράς αποτελεί και την τελική τιμή αγοράς – δεν υπάρχει δυνατότητα διαπραγμάτευσης μετά την ολοκλήρωσή της.

Details

  • Property ID:
    202-2SM
  • Plot Area:
    206 sq.m
  • Home Area:
    65 sq.m
  • Beds:
    1
  • Baths:
    1
  • Parking:
    1
  • Price:
    EUR €95,000
  • Year built:
    2010
  • Property Status:

Amenities

  • For Investment
  • Fully Airconditioned
  • Garden
  • Resale
  • Swimming Pool
  • Title Deeds
  • Unfurnished
  • Verandas

Google Nearby Places